
STRUCTURL ENGINEERING DESIGN SERVICES
We offer design services to help most projects in the residential, commercial and industrial sectors for all the notable project milestones including planning, building warrant and construction.
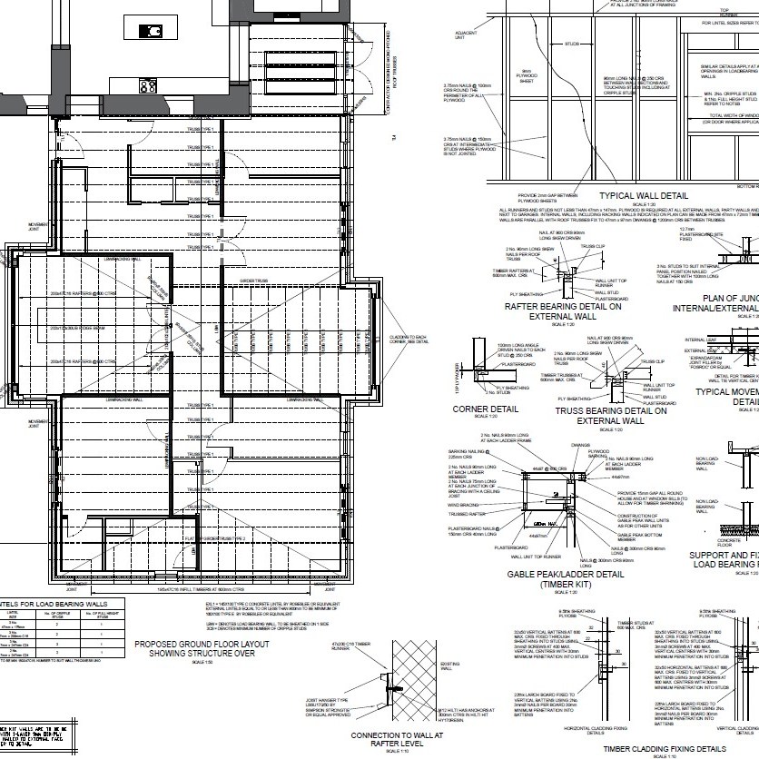
As part of this we undertake a rigorous design and calculation process including where required 3D structural analysis and design. We use the out put from this process to produce detailed 2D AutoCad drawings.
We also have the facility in-house to produce SER certificates for projects which in turn minimises the impact on the project timeline.
If you should wish to discuss a project you have please feel free to get in touch via our contact page.







STRUCTURAL INSPECTIONS AND SURVEYS
AT JDE WE HAVE A VAST KNOWLEDGE AND EXPERIENCE IN THE INSPECTIONS OF OF A VARIED TYPE OF BUILINGS. IF YOU ARE WORRIED ABOUT SOME UNUSUAL SIGNS OF DETERIORATION IN YOUR STRUCTURE PLEASE GET IN CONTACT AS WE OFFER A FAST STRUCTURAL INSPECTION SERVICE WITH A QUICK REPORT TURNAROUND.
RETAINING WALLS
WE HAVE THE CAPABILITIES TO DESIGN A VARIETY OF RETAINING WALLS IN A VARIETY MATERIALS. WHETHER THIS BE A TRADITIONAL MASONRY RETAINING WALL, L-SHAPED CONCRETE RETAINING WALLS OR Gabion basket type retaining wall
